中建蔚蓝之城规划调整/保利和唐悦色三期规划出炉
扫描到手机,新闻随时看
扫一扫,用手机看文章
更加方便分享给朋友
近日,济南市自然资源和规划局网站公示了中建蔚蓝之城C-6-1地块东、西区的规划调整公示,同时唐冶新区飞跃大道以南A地块房地产开发项目(三期)建设工程规划也进入批前公示阶段。
中建蔚蓝之城自去年入市以来,就受到了广大置业者的青睐,去化效果一直不错。在近日公布的规划调整中,是位于双龙居以东,西临奥体中路公交专用道的C-6-1地块。

该地块地处整个张马片区核心位置,周边紧邻行政用地,文化用地,还有小学、幼儿园等,此前规划9栋楼包括6栋小高层和3栋高层,基本上为18层小高和23-26层的高层配置。
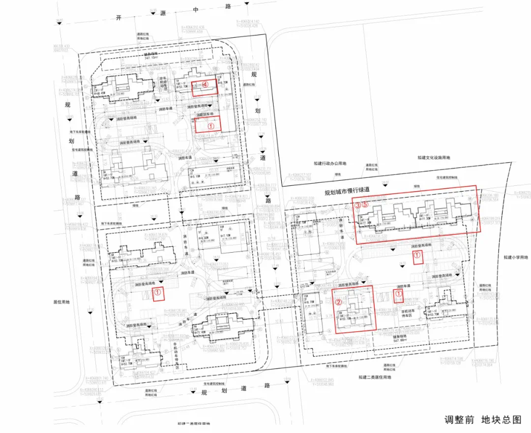
C-6-1地块分区情况:

西区含六栋住宅楼分别为:1#、2#、3#、6#、9#、10#楼五栋配套公建分别为:11#、12#、13#、14#、15#机动车总停车位457个,其中地上38个,地下419个东区含三栋住宅楼分别为:5#、7#、8#楼机动车总停车位257个,其中地上31个,地下226个


本次规划调整主要有以下几个方面:
1、地上停车位位置局部调整,总数量不变(69个)2、东区8号楼由住宅调整为高级人才住房,层数由18层改为12层3、东区5号楼层数由26层调整为25层4、1号楼首层东户阳台墙垛由560mm调整130mm5、增加居住公寓4户,位于5号楼中西户2户(1至2层)、中东户2户(1至2层)6、东区住宅主墙面色号由0122 3.1Y 9/2.4改为1301 6.3Y 9/1


位于唐冶新区飞跃大道以南,唐冶西路以西,龙凤山路以东规划G056地块的保利和唐悦色项目于近日公示了三期批前公示。

G056地块在2017年8月4日由保利溢价94.32%竞得,以26亿元+60048平方米安置房成交,竞价高达142轮,楼面价9937元/平方米,综合楼面价为12897元/平方米。

根据规划,项目共规划16栋高层住宅,18栋多层住宅并配建相应公共服务设施。其中三期规划8栋住宅,含2栋12层洋房、5栋17层小高层和1栋29层高层。

三期项目总建筑面积达137087.59平方米,总户数有794户,规划机动车停车位共1088个,其中地上21个,地下1067个。
声明:本文由入驻焦点开放平台的作者撰写,除焦点官方账号外,观点仅代表作者本人,不代表焦点立场。


