汉峪板块王者归来,回归真实的生活属性!
扫描到手机,新闻随时看
扫一扫,用手机看文章
更加方便分享给朋友
济南的真·hao宅项目,应该具备哪些属性?
诚然,2021年济南楼市的改善市场非常坚挺,让很多项目都开始打出改善定位的噱头来吸引购房者,但地块所处的位置能不能支持做改善、购房者是否认可都是一个问题。
那么,济南有哪些板块是可以匹配华宅属性的呢?
PART 1
回归真实置业属性,汉峪片区上演王者归来!
东部核心区真正的华宅板块在哪?相信大家的答案都会很一致:汉峪。而汉峪片区在济南楼市中的江湖地位至关重要,我们从几个维度来看。

1、众多房企云集的高端产品系
在2017年汉峪最后一次集中土拍后,汉峪片区见证了济南高端市场最辉煌的时刻,这里集中了在整个城市中只能出现一次的高端案名、产品系。
不是核心区的每个片区都有能力承载这些项目,即使是CBD片区也难觅真正的高端华宅!
2、刷新高端市场天花板的高单价、总价
在其他片区,总价500万、较高1000万基本就是一个极高的门槛;而在汉峪片区,总价2200万以上才是片区目前的总价天花板!
不论房企把片区价值炒作的如何有潜力,最终实际的销售情况会证明一切,客户的认可和口碑是较好的证明。
更难得的是,汉峪片区不但总价的天花板高,很多项目还卖的很好。
3、高端华宅的销售神话
早在2017年,汉峪片区的高新绿城玉蘭花园项目实现了济南楼市前无古人、后无来者的壮举:项目的中式低密产品组团首开就实现了售罄,还是全款!据悉当时的总价较高已经达到了1800万!

另外,作为汉峪片区穿越两个市场周期的项目,玉蘭花园从2015年年底首开入市至今已经实现了累计超100亿的销售额,在2020年断货半年的情况下仅用5个月就斩获了超25亿的销售业绩!
总的来说,汉峪片区的完善配套和环境资源优势给了在售项目显著的宜居属性加持,可以说在汉峪片区集中供货的阶段,其他片区可谓黯然失色。
但现在,我们不得不面对一个事实:汉峪片区住宅的销售阶段已经进入尾声。很快片区的新房就会一房难求,预计2023年片区就会进入存量房竞争的时代。
PART 2
新房供应稀缺,汉峪片区出现分化

经历了2017年的集中供地后,通过汉峪片区开发情况可以看出整个板块几乎没有土地可供出让了。
稀缺性足以让汉峪片区成为改善客群真正值得珍藏的板块,但2021年凤凰路高架的规划让汉峪片区仅有的少量新房项目出现了分化!
如果真要沿着凤凰路开始修建高架,确实会对沿线小区有一定影响,更何况高架沿线还是高端居住区!
这个变化,让一些改善购房者猝不及防,同时也让汉峪片区内部出现了分化:凤凰路沿线的小汉峪片区项目已经不再是改善置业的优选,和全运村一山之隔、孕育了绿城玉蘭花园和英伦联邦等项目的大汉峪片区在目前看来更值得选择!
在梳理片区存量用地时,我们发现了一处宝地:汉峪B7地块,这是整个汉峪片区目前最后一块未开发的住宅用地!而它的案名也十分大气:雲栖府。
PART 3
天赋贵地:雲栖府

从片区的小区位就能看出雲栖府的稀缺。
东侧为山体绿地;西侧为山大附中瀚阳小学,山大附属中学,家门口即享优质资源;南北两侧均为高端社区,还有社区服务中心相伴!
这样的天赋贵地,在汉峪片区堪称少有!

比如我们可以通过效果图看出项目外立面的品质,高颜值+大落地窗的设计都堪称大宅标配!


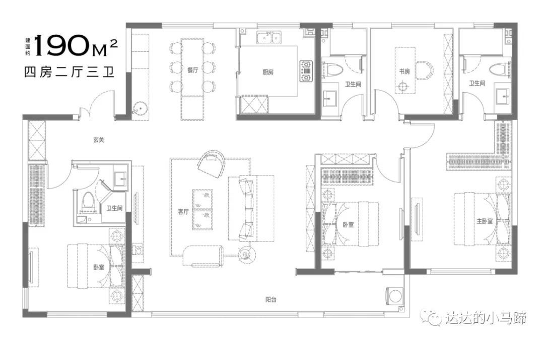
此外,据了解项目的圈层还非常纯粹,主力都是约170-226㎡的大户型产品,虽然最终户型还没确定,我们通过渠道获取了一些项目过程版的户型图,仅供大家参考。

比如雲栖府的这入门级四房产品,它大概的面积约为170-172㎡,是四房户型。它有着较大约14米的南向面宽,南向双阳台、LDK布置的客餐厨格局。
作为一款大平层四房户型,它的每个卧室都非常方正,南向主卧和次卧均有外飘窗设置,结合大落地窗的效果,其采光、观景的视野都是非常好。

而这款约190㎡户型则堪称王炸!
约17米的南向面宽结合南向大阳台、大宽厅的设计让这款户型的居住尺度非常理想,优质的面宽资源、优质的居住体验让这款户型足以成为汉峪片区大平层产品的王炸 !

最后我们说一下项目较大的约226㎡户型,这款户型位于地块东侧,有着整个项目最优质的观山视野!
虽为L厅的布局,但这款户型同样有约16.8米的大面宽和270°的观景环幕设计!室内的十字动线设计、中西双厨和L形观景阳台都是很多改善客群非常认可的设计。
在卧室空间中,这款户型最亮眼的就是奢华主卧的设计。大卧室开间、完整的双衣帽间配置、卫生间南向大采光+五件套,这才是hao宅业主的居住体验!
总体来看项目的产品力有很强的保证;大面宽、大宽厅、L型阳台、高窗墙比......这也是hao宅项目的标配!除了产品本身足够引人关注,项目周边也拥有优质、完善的教育配套,为有教育需求的业主们提供便利。

项目周边的学校建设标准高、生源质量好、师资力量有保证,部分学校会在今年开学,届时可以实地感受学校的教学质量。

从目前了解到的这些信息看,雲栖府不论从区位、外立面、产品端、配套资源均堪称高配、稀缺!现在的济南楼市,更需要的是这样的真·hao宅!
声明:本文由入驻焦点开放平台的作者撰写,除焦点官方账号外,观点仅代表作者本人,不代表焦点立场。


