这才是豪宅的园林!千人共鉴,济南排名前列新加坡式园林示范区开放
扫描到手机,新闻随时看
扫一扫,用手机看文章
更加方便分享给朋友
中海汇德里继首开破3亿,创造区域去化新记录后,又一次在片区内形成了良好的口碑传播。7月24日,中海汇德里景观示范区开放,揭开了济南排名前列新加坡式住假园林的神秘面纱。
GUCCI百年典藏展X示范区开放 经典永恒
豪宅和奢侈品一样,是经典的、永恒的、定制的、少数人私藏的,中海汇德里景观示范区开放现场,GUCCI百年典藏展同样亮眼。活动现场奢侈品皮具维护、花屿手作、冷餐甜品,专宠业主。选择中海汇德里,就是选择一种全新的生活方式。
希尔顿酒店园林团队 打造五重归家礼遇
大家都知道新加坡以花园城市闻名,他们对景观的精磨和造诣,在世界上可谓首屈一指。JTL设计公司作为希尔顿等五星级酒店园林设计团队,本次由首席设计总监PAX JU先生亲自操刀,打造片区景观标杆。居于中海汇德里,“让归家像在花园里度假一样悠闲自在”。
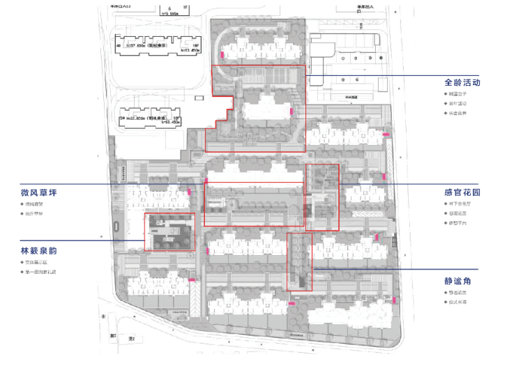
中海·汇德里以高墙围合场地的布局形式,有效地遮蔽嘈杂的城市界面,真正做到“出则繁华,入则宁静”。整个社区重点打造【林簌泉韵】【微风草坪】【林下会客及感官花园】【静谧花园】【全龄游乐区】五重归家礼遇。

林簌泉韵 新加坡景观与济南泉文化的优质融合
本次开放的景观示范区为排名前列重归家礼遇——林籁泉韵。72涌泉代表济南72名泉,黑木纹石材的坚硬与水的温润优质契合,9棵全冠移植的日本晚樱,每棵都是从1/2000的精挑细选。意大利进口软装,让业主既有归家的舒适,又有待客的排面。
72涌泉,泉声簌簌
交互空间
试想一下,樱花盛开的春天,花瓣飘落在水面,在这里和朋友一起品茗、听泉、赏花,该是怎么样的惬意。
二层挑台,玻璃栏板围合,可俯瞰整个园区,水吧搭配休闲桌椅,夜晚和家人一起聊聊天、赏赏景不失为一个好的休闲方式。
星级酒店式落客大堂 豪宅业主的归家礼遇
秉承“风雨归家”的设计理念,交通环岛+穹顶设计,打造真正的酒店式落客大堂。风雨天气,车辆在环岛驶入,业主在穹顶处下车,便可不经风雨归家。据统计,2020年济南有91天是雨天,11天是雪天,足可见酒店式落客大堂的重要性。仿奢侈品立面设计,大面积的LOW-E玻璃,搭配浅灰色雕刻纹理铝板,将现代美学与豪宅品质更好糅合。
和谐旁 低密洋房 定制豪宅
高奢会所,即将开放,敬请期待
声明:本文由入驻焦点开放平台的作者撰写,除焦点官方账号外,观点仅代表作者本人,不代表焦点立场。


