124平三室两厅新中式风格设计
扫描到手机,新闻随时看
扫一扫,用手机看文章
更加方便分享给朋友
新中式风格
通过传统中式风格的特征,
表达对清雅含蓄、
端庄丰华的东方式精神境界的追求。

新中式风格在设计上继承唐、明、清时期家具理念的精华,在经典古典元素提炼的基础上加入了现代设计元素,摆脱原来复杂繁琐的设计功能上的缺陷,力求中式的简洁质朴。

地址:龙湖水晶郦城
面积:124㎡
风格:新中式风格
设计师:靳勇

业主要求:房子是给家里老人居住不用太复杂,父亲是退休教师,比较喜欢中国传统文化,喜欢明式红木家具,不喜欢过于繁琐的装饰。要求简约、环保、实用,较好能体现出中国文化的内涵。


考虑到原户型客餐厅处于一个对角形式,从视觉感受上比较不舒服,在吊顶上给客户做了取方的设计改造,在吊顶设计时以青花八宝吉祥瓶为设计文化载体,吊顶四个小对角的八个面预示着佛家八宝,具有化煞镇宅吉祥之用。


考虑到老人抵抗力差一些,墙面选用了SKK的F4星环保等级的茶色乳胶漆装饰,衣柜柜体全是选用E0环保等级的板材,木地板选用花梨纹饰的实木复合地板,既美观还比较环保。

餐厅小酒柜选用的边角有窗棂造型,中间有推拉挂画式样的,既简洁实用,还比较大方耐看。


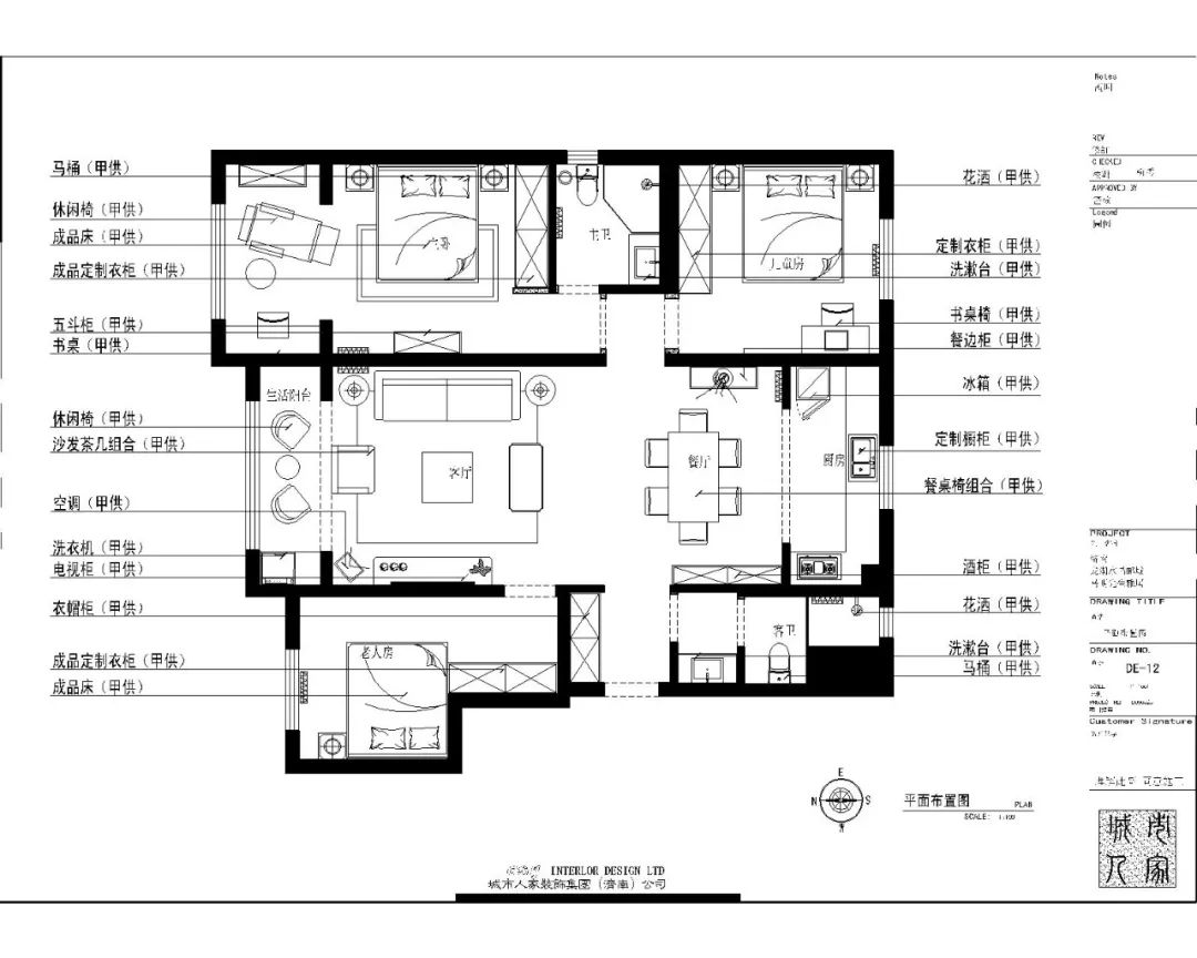
案例平面图

声明:本文由入驻焦点开放平台的作者撰写,除焦点官方账号外,观点仅代表作者本人,不代表焦点立场。
